NORTHLIGHT

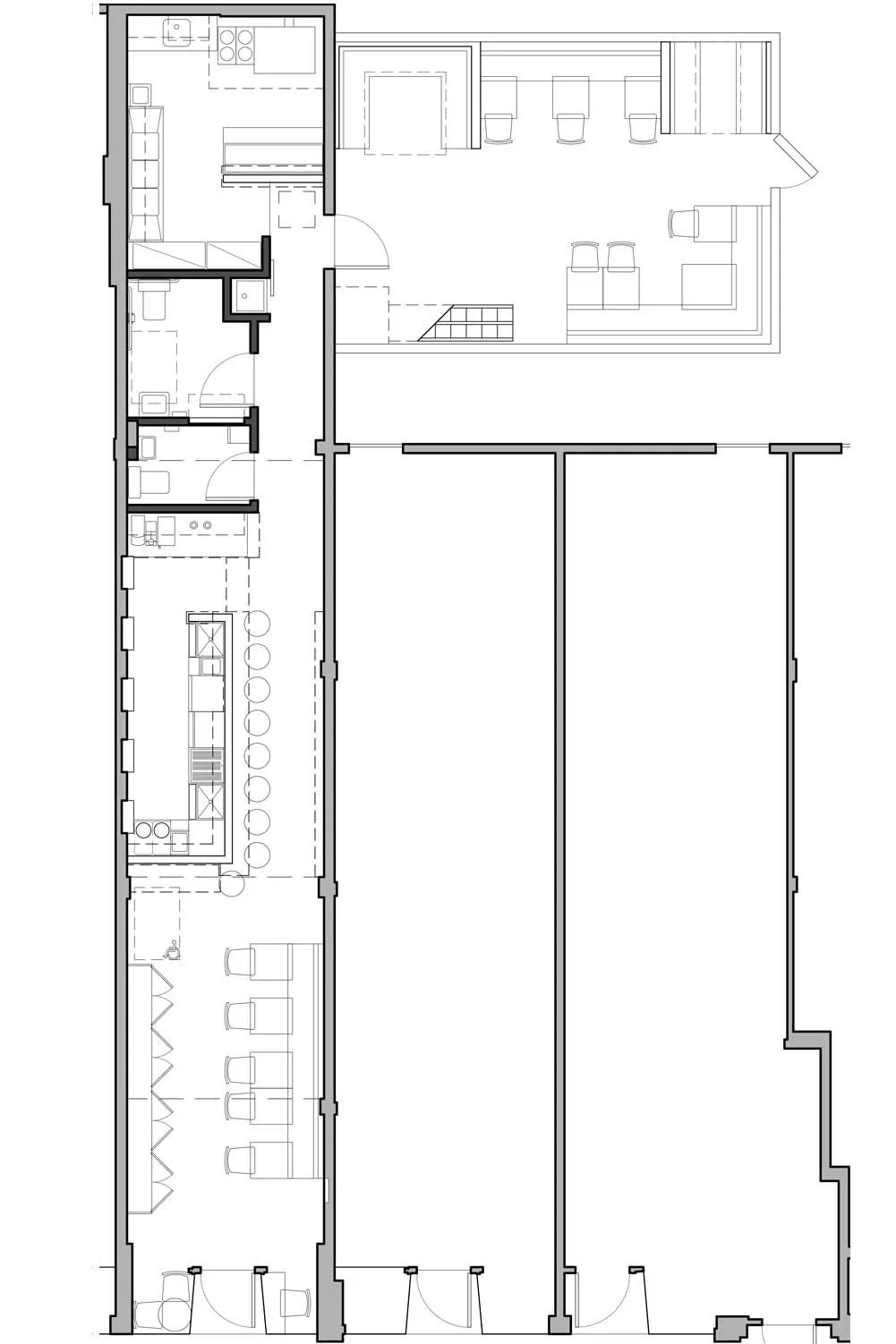
Architecture and interior design for 800 s.f. neighborhood hang-out Northlight. Every inch was tailored for this full service restaurant including an espresso counter and cocktail bar, custom dining bench, and floor to ceiling millwork displaying their curated book and record shop. The heated back patio has built-in booth and banquette seats under a retractable awning. Vibes are checked with low lights, gallery walls and a DJ nook.

YEAR
2019

COLLABORATORS
Black Creek Builders
Stephen Swinstrom